Description
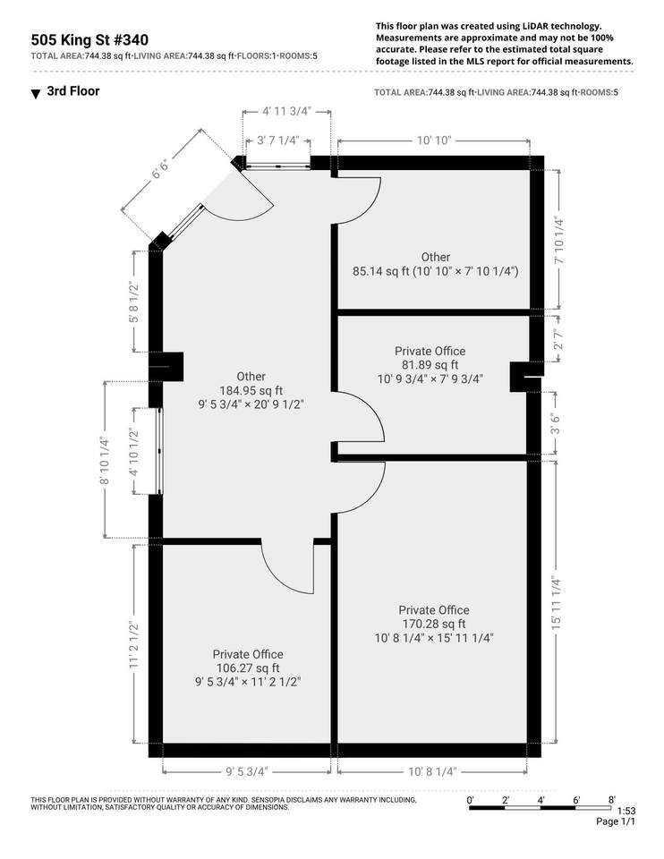
Lock down your affordable office space in one of La Crosse's cornerstone downtown buildings! This King on 5th space has 640 sq ft of a main area, break room, and three offices. Owner willing to allow tenant to do buildout and open space up. Tenant pays own electric, limited parking spots available. $9.95/sq ft. Flexible lease terms.
-
0BEDS
-
0.7ACRES
-
0BATHS
-
01/2 BATHS
-
640SQFT
-
$1$/SQFT
School Ratings & Info
Listing provided courtesy of eXp Realty LLC: (866) 848-6990 ext- 101.
Description
Lock down your affordable office space in one of La Crosse's cornerstone downtown buildings! This King on 5th space has 640 sq ft of a main area, break room, and three offices. Owner willing to allow tenant to do buildout and open space up. Tenant pays own electric, limited parking spots available. $9.95/sq ft. Flexible lease terms.
Related Properties
© 2025 MetroMLS - All rights reserved. Information is supplied by seller and other third parties and has not been verified. IDX information is provided exclusively for consumers' personal, non-commercial use and may not be used for any purpose other than to identify prospective properties consumers may be interested in purchasing. Information is deemed reliable but is not guaranteed accurate by MetroMLS or Shine Realty. Data last updated: 2025-11-09T15:52:31.303.
